Проект дома 52-39

Проект дома 52-39
Базовая стоимость строительства ?
9 828 000
Общая площадь: 180 м2
В базовую стоимость строительства входит:
  • Фундамент ж/б плита c ростверком
  • Стены газобетон 375 мм
  • Межэтажное ж/б перекрытие
  • Утеплённая кровля
  • Окна (двухкамерные стеклопакеты)

Стоимость является примерной и не учитывает всех конструктивных особенностей дома, условий конкретного земельного участка и региона строительства, индивидуальных пожеланий к строительным материалам.

Узнать точную стоимость строительства:
Предпочтительный способ связи:
заказать Смету
Характеристики
Описание
Планы помещений
Фасады
Характеристики
Общая площадь: 180 м2
Материал: газобетон/теплая ĸерамиĸа/ĸирпич
Число этажей: 2
Тип кровли: мансардная
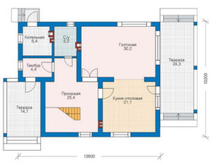
Дополнительно: Кухня-столовая, Котельная, Терраса
Описание проекта

Представляем вам проект дома №52-39 — уникальный дом с мансардой размером 12 на 10 метров и общей площадью 180 м2. Этот проект идеально подходит для больших участков, а также для тех, кто ищет дом с четырьмя просторными спальнями.

Одноэтажная планировка с мансардой обеспечивает комфорт и удобство. В доме есть терраса, где вы сможете наслаждаться свежим воздухом и прекрасными видами. Кухня-столовая станет идеальным местом для семейных посиделок и приготовления вкусных блюд.

Особенностью этого проекта является наличие котельной, что позволяет эффективно обеспечивать тепло в доме. Также, благодаря мансарде, вы получаете дополнительное пространство для хранения или организации дополнительных помещений.

Проект дома №52-39 — это идеальное решение для тех, кто ищет просторный и функциональный дом на большом участке. Он сочетает в себе все необходимые характеристики, чтобы стать вашим уютным и комфортным домом.

Планы помещений
План первого этажа
План мансардного этажа
Высота дома
Фасады
Категории проекта
газобетон/пеноблок 150-200 кв.м газобетон/пеноблок 170-200 кв.м двухэтажные дома двухэтажные дома для большой семьи двухэтажные дома с котельной двухэтажные дома с террасой двухэтажные дома с четырьмя спальнями двухэтажные из газобетона/пеноблока двухэтажные кирпичные дома дома 150-250 кв.м дома без гаража дома из газобетона/пеноблока дома из камня дома из кирпича/поризованного камня дома с мансардой и террасой дома с четыремя спальнями кирпичные дома 150-200 кв.м кирпичные дома 170-200 кв.м кирпичные с мансардой мансардные дома мансардные дома для большого участка мансардные дома с котельной мансардные дома с четырьмя спальнями мансардные из блоков небольшие двухэтажные дома небольшие дома из кирпича небольшие мансардные дома небольшие недорогие дома из газобетона проекты домов 150-200 кв.м проекты домов площадью 180 кв.м проекты домов с мансардой проекты домов с террасой с монолитным каркасом современные двухэтажные дома современные дома с мансардой