Проект дома 70-77

Проект дома 70-77
Базовая стоимость строительства ?
9 828 000
Общая площадь: 180 м2
В базовую стоимость строительства входит:
  • Фундамент ж/б плита c ростверком
  • Стены газобетон 375 мм
  • Межэтажное ж/б перекрытие
  • Утеплённая кровля
  • Окна (двухкамерные стеклопакеты)

Стоимость является примерной и не учитывает всех конструктивных особенностей дома, условий конкретного земельного участка и региона строительства, индивидуальных пожеланий к строительным материалам.

Узнать точную стоимость строительства:
Предпочтительный способ связи:
заказать Смету
Характеристики
Описание
Планы помещений
Фасады
Характеристики
Общая площадь: 180 м2
Материал: газобетон/теплая ĸерамиĸа/ĸирпич
Число этажей: 2
Тип кровли: мансардная
Дополнительно: Кухня-столовая, Котельная
Описание проекта

Представляем вам проект дома №70-77 — шикарный мансардный дом размерами 12 на 10 метров. Общая площадь этого уютного жилища составляет 180 квадратных метров. Внутри вы найдете все необходимое для комфортной жизни: котельная и просторная кухня-столовая.

Наш проект идеально подходит для тех, кто мечтает о доме площадью 180 кв.м. Это мансардный дом с четырьмя спальнями, который идеально впишется на участок большой площади.

Мы учли все ваши потребности и пожелания. В этом доме вы найдете комфорт и уют, а также достаточно пространства для всей семьи.

Проект дома №70-77 — это идеальный выбор для тех, кто ищет просторный и функциональный дом площадью 150-250 кв.м. С четырьмя спальнями, он обеспечит комфортное проживание для всей семьи.

Не упустите возможность обрести свой идеальный дом! Наш проект дома №70-77 — это идеальное решение для вас.

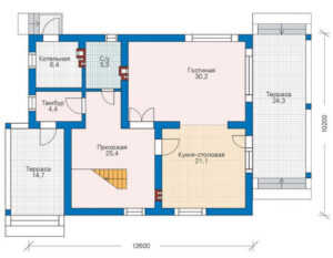
Планы помещений
План первого этажа
План мансардного этажа
Высота дома
Фасады
Категории проекта
газобетон/пеноблок 150-200 кв.м газобетон/пеноблок 170-200 кв.м двухэтажные дома двухэтажные дома для большой семьи двухэтажные дома с котельной двухэтажные дома с четырьмя спальнями двухэтажные из газобетона/пеноблока двухэтажные кирпичные дома дома 150-250 кв.м дома без гаража дома из газобетона/пеноблока дома из камня дома из кирпича/поризованного камня дома с четыремя спальнями кирпичные дома 150-200 кв.м кирпичные дома 170-200 кв.м кирпичные с мансардой мансардные дома мансардные дома для большого участка мансардные дома с котельной мансардные дома с четырьмя спальнями мансардные из блоков небольшие двухэтажные дома небольшие дома из кирпича небольшие мансардные дома небольшие недорогие дома из газобетона проекты домов 150-200 кв.м проекты домов площадью 180 кв.м проекты домов с мансардой с монолитным каркасом современные двухэтажные дома современные дома с мансардой